Eckdaten
Hollersbach im Pinzgau
76 m²
2
1
ID:
MG-0002305_12
€ 679.960
Details
- Baujahr: 2025
- Heizung: Fußboden (Luftwärmepumpe)
Baujahr: 2025 /
Kontakt
Alex Köll
Tel: +43 664 122 51 01
Bernhard Oberhauser
Tel: +43 676 677 91 15
Franz Gobec
Tel: +43 676 704 71 20
Beschreibung
Eingebettet in den Hohen Tauern befindet sich die malerische Ortschaft Hollersbach.
Mitten in zentraler Lage entsteht eine exklusive Wohnanlage mit 12 Einheiten in einem der schönsten Täler Salzburgs. Das Gebiet rund um Hollersbach und die einzigartige, teilweise unberührte Natur, zieht jedes Jahr zahlreiche Touristen und Besucher an.
Die Wohnanlage befindet sich gerade in der Bauphase und wird voraussichtlich Mitte 2026 fertiggestellt. Die Innenräume überzeugen durch stilvolle Materialien: so wird in den Wohn- und Schlafräumen edles Eichenparkett verlegt, während Flure, Bäder und WC mit zeitlos eleganten Fliesen ausgestattet werden. Fenster und Terrassentüren sind in langlebiger Kunststoff-Aluminium-Ausführung gefertigt, die Innentüren bestehen aus hochwertigem Eichenholz. Die Küchen werden mit allen notwendigen Kalt- und Warmwasserinstallationen vorbereitet, sodass jeder Käufer die Ausstattung individuell gestalten kann. Auch die Ausstattung der Badezimmer und die Armaturen sind frei wählbar und bieten somit maximale Flexibilität bei der Gestaltung.
Für ein angenehmes Raumklima sorgt eine energieeffiziente Luftwärmepumpe. Die Elektroinstallationen umfassen Anschlüsse für Internet, TV, E-Herd, Deckenbeleuchtung sowie eine moderne Türsprechanlage. In sämtlichen Räumen kommen Qualitätsprodukte von Busch-Jaeger zum Einsatz.
Als Eigenheim oder als Anlageobjekt bietet diese Immobilie alles, was das Herz begehrt – von hochwertiger Ausstattung über energieeffiziente Technik bis hin zu einer einzigartigen Lage inmitten der Alpen.
Jede der Wohnungen verfügt über ein Kellerabteil sowie zwei zugeordnete Freistellplätze. Ein Personenaufzug ist ebenfalls vorhanden.
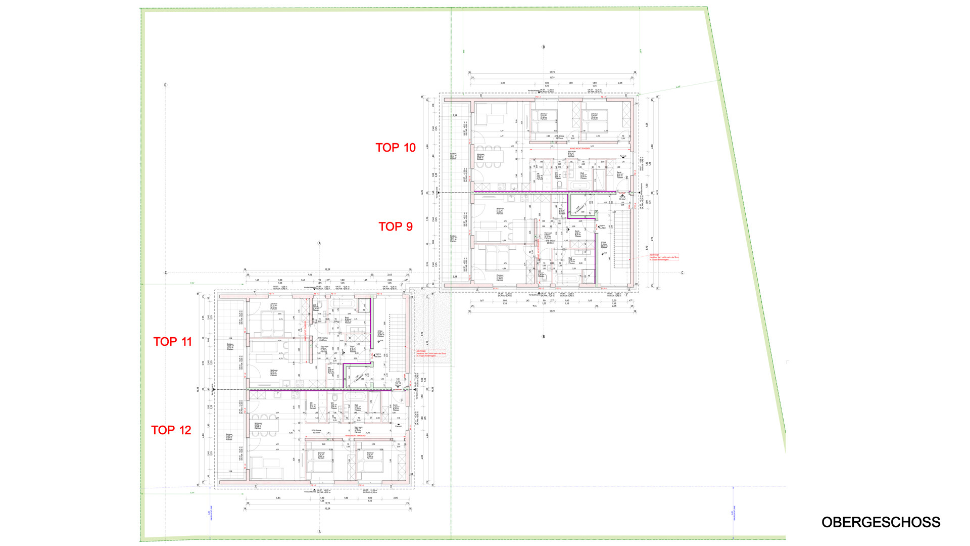
Die hier angebotene exklusive Eigentumswohnung Top 12 ist im Dachgeschoss der luxuriösen Wohnanlage situiert und bietet Ihnen einen fantastischen Rundumblick auf die Bergwelt. Die Wohnung verfügt über 75 m² Wohnfläche und teilt sich auf in den Eingangsbereich, den lichtdurchfluteten Wohn-Essbereich mit offener Küche, zwei Schlafzimmer mit Blick auf die Bergwelt, das Badezimmer mit großer Eckdusche, Badewanne und Doppelwaschtisch. Ein separater Abstellraum sowie eine eigene Gäste-Toilette runden die Wohnung perfekt ab. Der überdachte ca. 13 m² große Balkon bietet sodann einen weiteren Platz, um es sich gemütlich zu machen. Energiedaten in Arbeit.
Mitten in zentraler Lage entsteht eine exklusive Wohnanlage mit 12 Einheiten in einem der schönsten Täler Salzburgs. Das Gebiet rund um Hollersbach und die einzigartige, teilweise unberührte Natur, zieht jedes Jahr zahlreiche Touristen und Besucher an.
Die Wohnanlage befindet sich gerade in der Bauphase und wird voraussichtlich Mitte 2026 fertiggestellt. Die Innenräume überzeugen durch stilvolle Materialien: so wird in den Wohn- und Schlafräumen edles Eichenparkett verlegt, während Flure, Bäder und WC mit zeitlos eleganten Fliesen ausgestattet werden. Fenster und Terrassentüren sind in langlebiger Kunststoff-Aluminium-Ausführung gefertigt, die Innentüren bestehen aus hochwertigem Eichenholz. Die Küchen werden mit allen notwendigen Kalt- und Warmwasserinstallationen vorbereitet, sodass jeder Käufer die Ausstattung individuell gestalten kann. Auch die Ausstattung der Badezimmer und die Armaturen sind frei wählbar und bieten somit maximale Flexibilität bei der Gestaltung.
Für ein angenehmes Raumklima sorgt eine energieeffiziente Luftwärmepumpe. Die Elektroinstallationen umfassen Anschlüsse für Internet, TV, E-Herd, Deckenbeleuchtung sowie eine moderne Türsprechanlage. In sämtlichen Räumen kommen Qualitätsprodukte von Busch-Jaeger zum Einsatz.
Als Eigenheim oder als Anlageobjekt bietet diese Immobilie alles, was das Herz begehrt – von hochwertiger Ausstattung über energieeffiziente Technik bis hin zu einer einzigartigen Lage inmitten der Alpen.
Jede der Wohnungen verfügt über ein Kellerabteil sowie zwei zugeordnete Freistellplätze. Ein Personenaufzug ist ebenfalls vorhanden.
Die hier angebotene exklusive Eigentumswohnung Top 12 ist im Dachgeschoss der luxuriösen Wohnanlage situiert und bietet Ihnen einen fantastischen Rundumblick auf die Bergwelt. Die Wohnung verfügt über 75 m² Wohnfläche und teilt sich auf in den Eingangsbereich, den lichtdurchfluteten Wohn-Essbereich mit offener Küche, zwei Schlafzimmer mit Blick auf die Bergwelt, das Badezimmer mit großer Eckdusche, Badewanne und Doppelwaschtisch. Ein separater Abstellraum sowie eine eigene Gäste-Toilette runden die Wohnung perfekt ab. Der überdachte ca. 13 m² große Balkon bietet sodann einen weiteren Platz, um es sich gemütlich zu machen. Energiedaten in Arbeit.

























