Eckdaten
Hollersbach im Pinzgau
55 m²
1
1
ID:
MG-0002305_9
€ 485.317
Details
- Baujahr: 2025
- Heizung: Fußboden (Luftwärmepumpe)
- Stellplätze: 2
Baujahr: 2025 /
Stellplätze: 2 /
Kontakt
Alex Köll
Tel: +43 664 122 51 01
Bernhard Oberhauser
Tel: +43 676 677 91 15
Franz Gobec
Tel: +43 676 704 71 20
Beschreibung
Eingebettet in den Hohen Tauern befindet sich die malerische Ortschaft Hollersbach.
Mitten in zentraler Lage entsteht eine exklusive Wohnanlage mit 12 Einheiten in einem der schönsten Täler Salzburgs. Das Gebiet rund um Hollersbach und die einzigartige, teilweise unberührte Natur, zieht jedes Jahr zahlreiche Touristen und Besucher an.
Die Wohnanlage befindet sich gerade in der Bauphase und wird voraussichtlich Mitte 2026 fertiggestellt. Die Innenräume überzeugen durch stilvolle Materialien: so wird in den Wohn- und Schlafräumen edles Eichenparkett verlegt, während Flure, Bäder und WC mit zeitlos eleganten Fliesen ausgestattet werden. Fenster und Terrassentüren sind in langlebiger Kunststoff-Aluminium-Ausführung gefertigt, die Innentüren bestehen aus hochwertigem Eichenholz. Die Küchen werden mit allen notwendigen Kalt- und Warmwasserinstallationen vorbereitet, sodass jeder Käufer die Ausstattung individuell gestalten kann. Auch die Ausstattung der Badezimmer und die Armaturen sind frei wählbar und bieten somit maximale Flexibilität bei der Gestaltung.
Für ein angenehmes Raumklima sorgt eine energieeffiziente Luftwärmepumpe. Die Elektroinstallationen umfassen Anschlüsse für Internet, TV, E-Herd, Deckenbeleuchtung sowie eine moderne Türsprechanlage. In sämtlichen Räumen kommen Qualitätsprodukte von Busch-Jaeger zum Einsatz.
Als Eigenheim oder als Anlageobjekt bietet diese Immobilie alles, was das Herz begehrt – von hochwertiger Ausstattung über energieeffiziente Technik bis hin zu einer einzigartigen Lage inmitten der Alpen.
Jede der Wohnungen verfügt über ein Kellerabteil sowie zwei zugeordnete Freistellplätze. Ein Personenaufzug ist ebenfalls vorhanden.
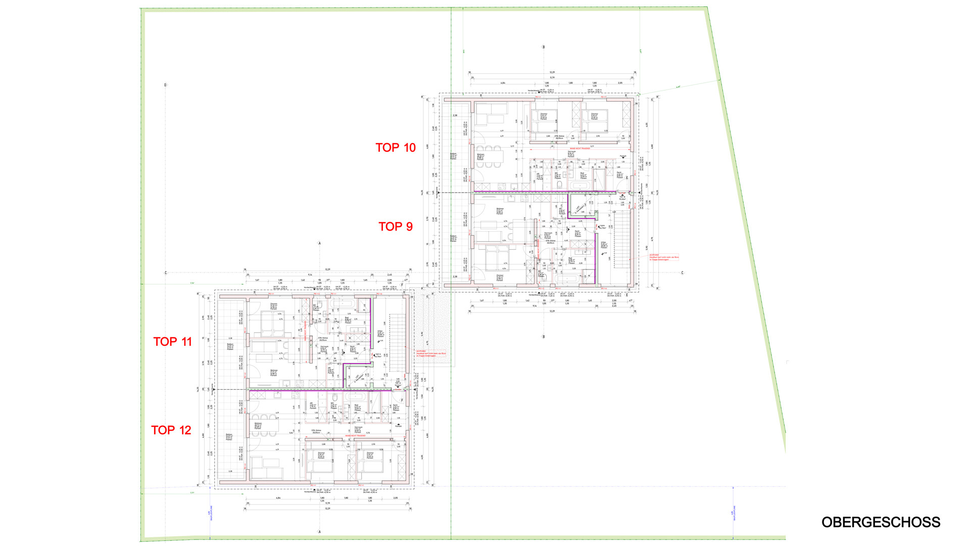
Die hier angeboten Wohnung Top 9 bietet auf knapp 55 m² Wohnfläche ein durchdachtes Raumkonzept, verbunden mit einem modernen Wohnerlebnis.
Das Apartment teilt sich wie folgt auf: Eingangsbereich, großzügiges Wohn-Esszimmer mit offener Küche, das Masterschlafzimmer, Badezimmer mit Eckdusche, Badewanne und Doppelwaschtisch. Weiters verfügt die Wohnung über ein Gäste-WC, einen Abstellraum sowie einen Balkon, von dem man das Panorama auf die Hohen Tauern genießen kann. Energiedaten in Arbeit.
Mitten in zentraler Lage entsteht eine exklusive Wohnanlage mit 12 Einheiten in einem der schönsten Täler Salzburgs. Das Gebiet rund um Hollersbach und die einzigartige, teilweise unberührte Natur, zieht jedes Jahr zahlreiche Touristen und Besucher an.
Die Wohnanlage befindet sich gerade in der Bauphase und wird voraussichtlich Mitte 2026 fertiggestellt. Die Innenräume überzeugen durch stilvolle Materialien: so wird in den Wohn- und Schlafräumen edles Eichenparkett verlegt, während Flure, Bäder und WC mit zeitlos eleganten Fliesen ausgestattet werden. Fenster und Terrassentüren sind in langlebiger Kunststoff-Aluminium-Ausführung gefertigt, die Innentüren bestehen aus hochwertigem Eichenholz. Die Küchen werden mit allen notwendigen Kalt- und Warmwasserinstallationen vorbereitet, sodass jeder Käufer die Ausstattung individuell gestalten kann. Auch die Ausstattung der Badezimmer und die Armaturen sind frei wählbar und bieten somit maximale Flexibilität bei der Gestaltung.
Für ein angenehmes Raumklima sorgt eine energieeffiziente Luftwärmepumpe. Die Elektroinstallationen umfassen Anschlüsse für Internet, TV, E-Herd, Deckenbeleuchtung sowie eine moderne Türsprechanlage. In sämtlichen Räumen kommen Qualitätsprodukte von Busch-Jaeger zum Einsatz.
Als Eigenheim oder als Anlageobjekt bietet diese Immobilie alles, was das Herz begehrt – von hochwertiger Ausstattung über energieeffiziente Technik bis hin zu einer einzigartigen Lage inmitten der Alpen.
Jede der Wohnungen verfügt über ein Kellerabteil sowie zwei zugeordnete Freistellplätze. Ein Personenaufzug ist ebenfalls vorhanden.
Die hier angeboten Wohnung Top 9 bietet auf knapp 55 m² Wohnfläche ein durchdachtes Raumkonzept, verbunden mit einem modernen Wohnerlebnis.
Das Apartment teilt sich wie folgt auf: Eingangsbereich, großzügiges Wohn-Esszimmer mit offener Küche, das Masterschlafzimmer, Badezimmer mit Eckdusche, Badewanne und Doppelwaschtisch. Weiters verfügt die Wohnung über ein Gäste-WC, einen Abstellraum sowie einen Balkon, von dem man das Panorama auf die Hohen Tauern genießen kann. Energiedaten in Arbeit.

























